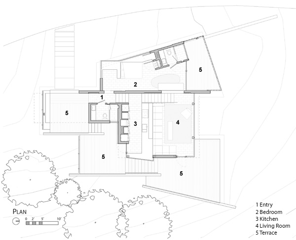
Designed by New York based architects Cooper Joseph Studio, the Small House sits amongst an orchard of newly planted olive trees on a site overlooking the Dry Creek Valley near Sonoma, California. The 80m2 house embodies rich layers of detail & texture despite its small size; the simple programme - a bedroom, a kitchen and a living room are made beautiful through a reduced palette of zinc and gray stained oak.





0 التعليقات:
إرسال تعليق